Menu
Telephone 0445 382081
Email info@soluzionecasathiene.com

THIENE - ATTICO INDIPENDENTE CON TERRAZZI INTROVABILI CON GARAGE

64
Vendita
€ 288.000,00
Thiene
3
No
Versione PDFVersione PDF Richiedi informazioniRichiedi informazioni
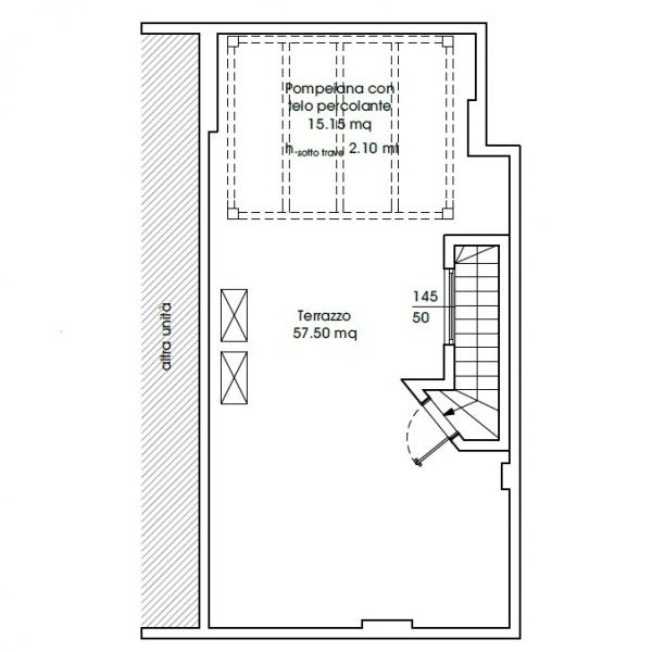
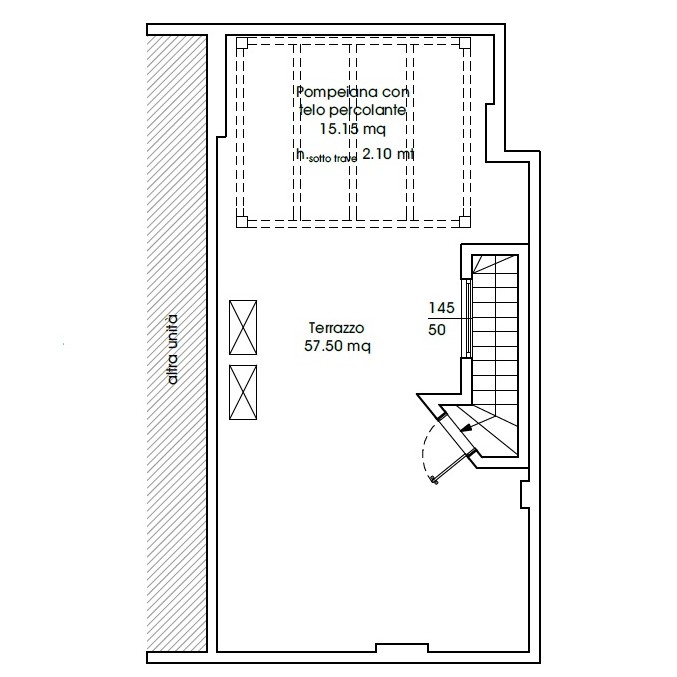
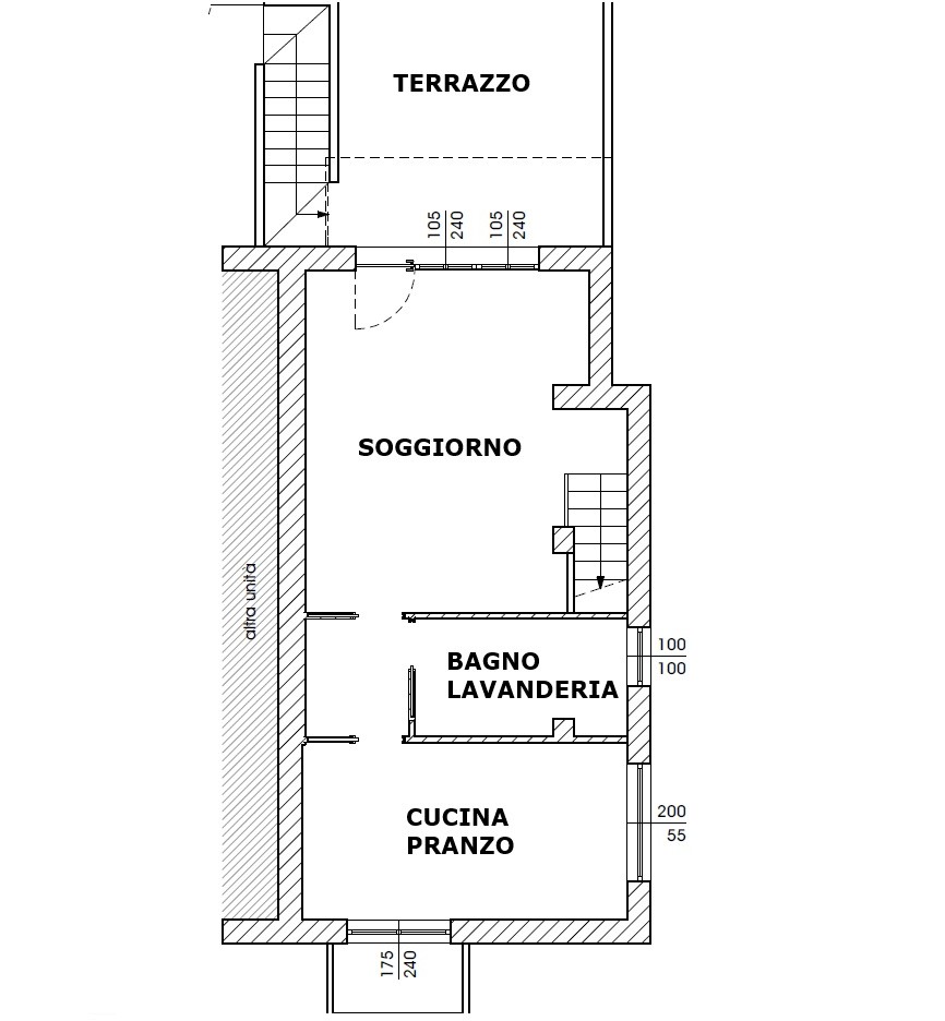
Se stai cercando una valida alternativa al "NUOVO",  SOLUZIONECASA ti propone questo splendido appartamento con terrazzi ampi e panoramici disposto su due livelli con riscaldamento a pavimento, cappotto termico, terrazzo solarium esclusivo sul tetto, clima. Con ingresso indipendente l'appartamento si trova al piano primo di una palazzina costruita nel 2008, ampia zona giorno con cucina abitabile separata, la zona gode di una vetrata scorrevole che si affaccia su terrazzo di 20 mq. ca., al piano giorno troviamo anche un bagno-lavanderia; al piano superiore la camera matrimoniale padronale con terrazzo, altra camera matrimoniale, uno studio, un bagno con doccia; terrazzo solarium esclusivo sul tetto con predisposizione e progetto di pompeiana. Al piano interrato garage doppio. Consegna breve.
Metri quadri 160.00
piano su più livelli
terrazzo si
camere nr.
cucina abitabile
nr. bagni 3
lati liberi tre
Garage Doppio
altri posti auto coperti 0
altri posti auto scoperti 0
Tipo giardino
Metri quadri giardino 0.00
arredamento parzialmente arredato
spese condominiali mensili 0
riscaldamento autonomo
taverna
cantina
mansarda
infissi vetro/legno
Classe energetica C
ipe 0.00